Ein Flez für Brand     



















Fake Architects [Wien, AT & Brand, DE 2019]

︎︎︎ Brand, DE
︎︎︎ Artist in Residence
︎︎︎ Reactivation
︎︎︎ From A to B


De Flez (sog: Fleez; aa da Flez und des Flez megli) oda Fletz (sog: Flez), bdt. Flöz oda Flötz, is im engan Sinn da Hausgang (Flur), urspringle vua oim in am Bauanhaus [1]. Im weidanSinn is damid a ebana Fuasbodn gmoant, moast aus Stampfloam, ofd gmischd mid feim Riesl (Schoda), wiar a im Stodl, im Stoi und aa im Hausgang vawendt worn is.[2][3]

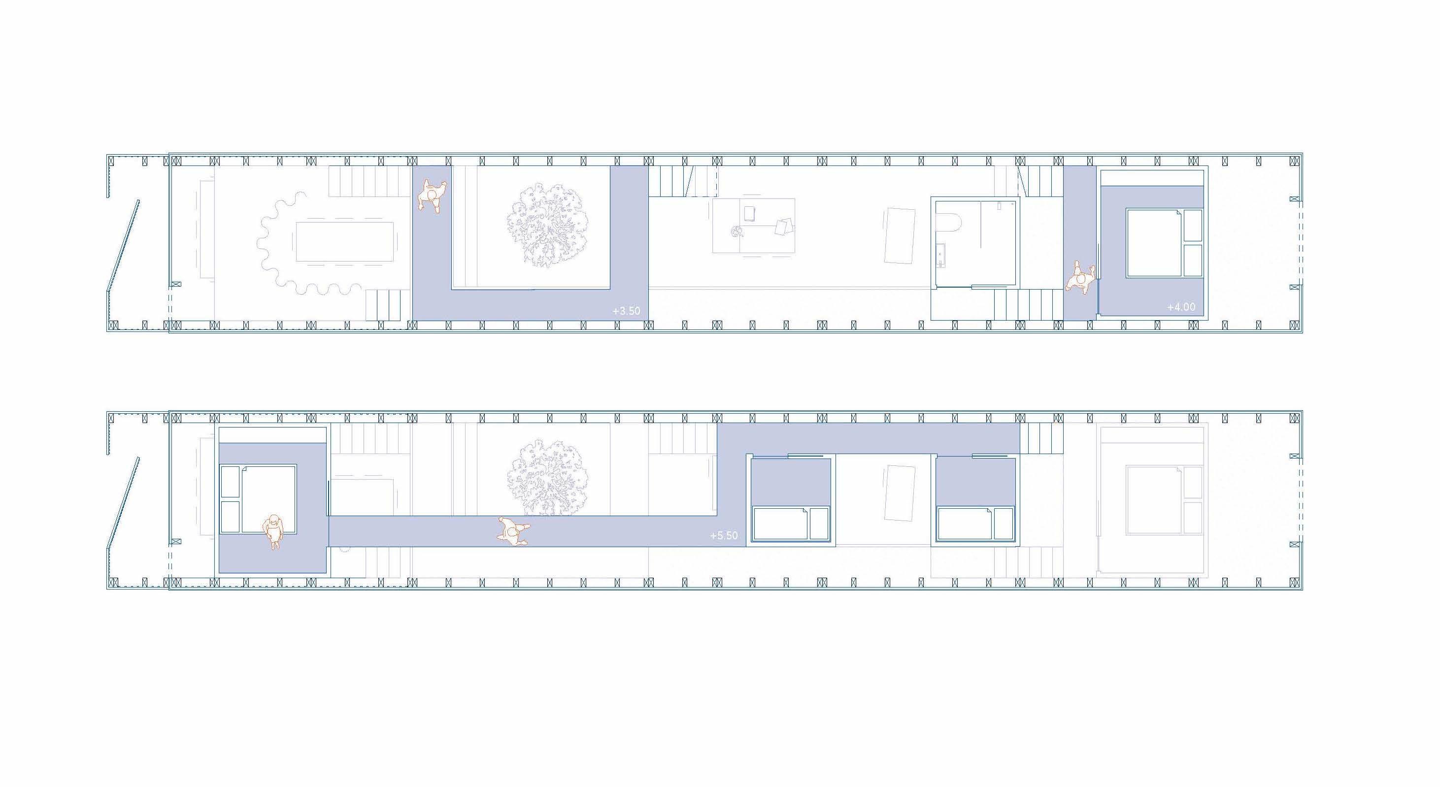
Ein Flez - is an old Bavarian term which comes from the German “Flur,” meaning entryway or hallway. Focusing on the connection between rooms, we set out to make an artist residency which drew on the form and feeling of a long corridor in the landscape. A hallway that can do everything. The facade is rhythmically punctured to create a play between inside and outside, private and public. The elevation plays off the idea of intimacy and privacy - the higher one journeys into the “flez” the more private it becomes.



more:



[1] 100 Years - She* came to stay


[2] Bei Aller Liebe - jetzt wird gefotzt!


[3] 6 Characters Still in Search


[4] Insektarium

[5] S.O.F.A. Architekten Catalog
[6] Ein Flez für Brand

[7] Plastiglomerate

[8] indexing TOUCH/ing space*

[9] stattTHEATER

[10] A POST OIL ODYSSEY

[11] the emperor’s new clothes


Fake Architects
[Wien, AT & Brand, DE 2019]

︎︎︎ Brand, DE
︎︎︎ Artist in Residence
︎︎︎ Reactivation
︎︎︎ From A to B


De Flez (sog: Fleez; aa da Flez und des Flez megli) oda Fletz (sog: Flez), bdt. Flöz oda Flötz, is im engan Sinn da Hausgang (Flur), urspringle vua oim in am Bauanhaus [1]. Im weidanSinn is damid a ebana Fuasbodn gmoant, moast aus Stampfloam, ofd gmischd mid feim Riesl (Schoda), wiar a im Stodl, im Stoi und aa im Hausgang vawendt worn is.[2][3]

Ein Flez - is an old Bavarian term which comes from the German “Flur,” meaning entryway or hallway. Focusing on the connection between rooms, we set out to make an artist residency which drew on the form and feeling of a long corridor in the landscape. A hallway that can do everything. The facade is rhythmically punctured to create a play between inside and outside, private and public. The elevation plays off the idea of intimacy and privacy - the higher one journeys into the “flez” the more private it becomes.




© j_eckhart 2022